Pavilhão/Galpão Industrial
Jardim Fátima - Guarulhos/SPPavilhão/Galpão Industrial
Jardim Fátima - Guarulhos/SP

aluguel
R$253.538,00Área Construída
10.141 m²Situação
UsadoCômodos
Descrição do imóvel
Galpões Almeida, Aluga, Vende e Administra, em toda Grande São Paulo, interior e Capital.
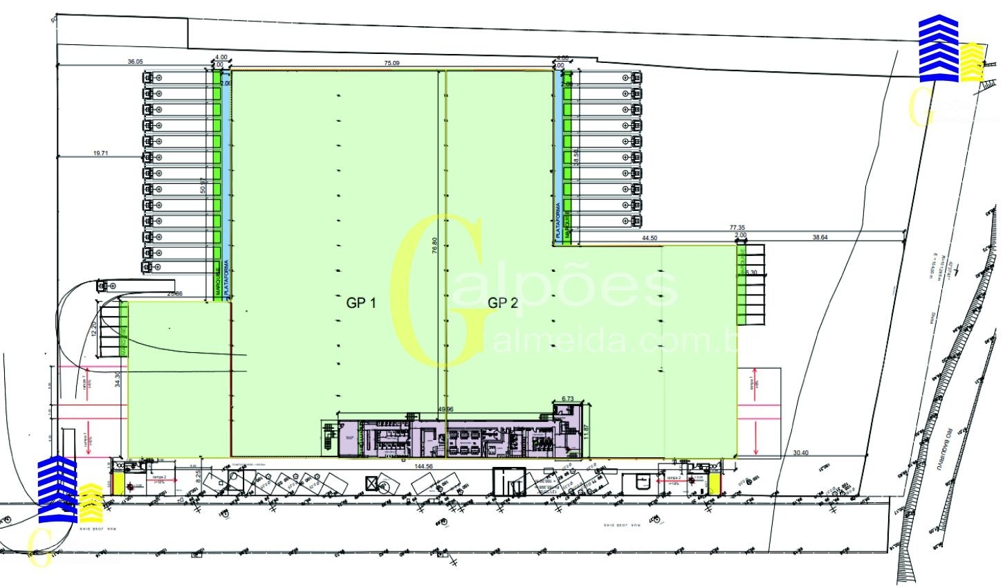
Área de terreno: 20.000
Área construída: 10.141.50
Área fabril: 8.725
Escritório: 497.79
Área apoio: 919.15
Pé direito: 7
Doca: 23
Entrada nível do piso:
Área de pátio: 8.000
Capacidade do piso em t/m²: 5
Descrição:
Área escritório: salas banheiro - recepção - copa
Área galpão: vestiários - refeitório - cozinha
Área externa: Patio de manobra - estacionamento
Zoneamento:
Energia: trifásico
Local acessa carretas:
Garantia: Seguro fiança - Fiador - Fiança bancária - Caução em imóvel
Maiores informações e visita entre em contato.
Anúncio sujeito alteração de valores e outros, sem prévio aviso!
Consulte em nosso site e ou nossos consultores para saber se permanece disponível.
AO ENTRAR EM CONTATO FAVOR INFORMAR CÓDIGO DO IMÓVEL PARA FACILITAR LOCALIZAÇÃO
CÓDIGO GBL814



